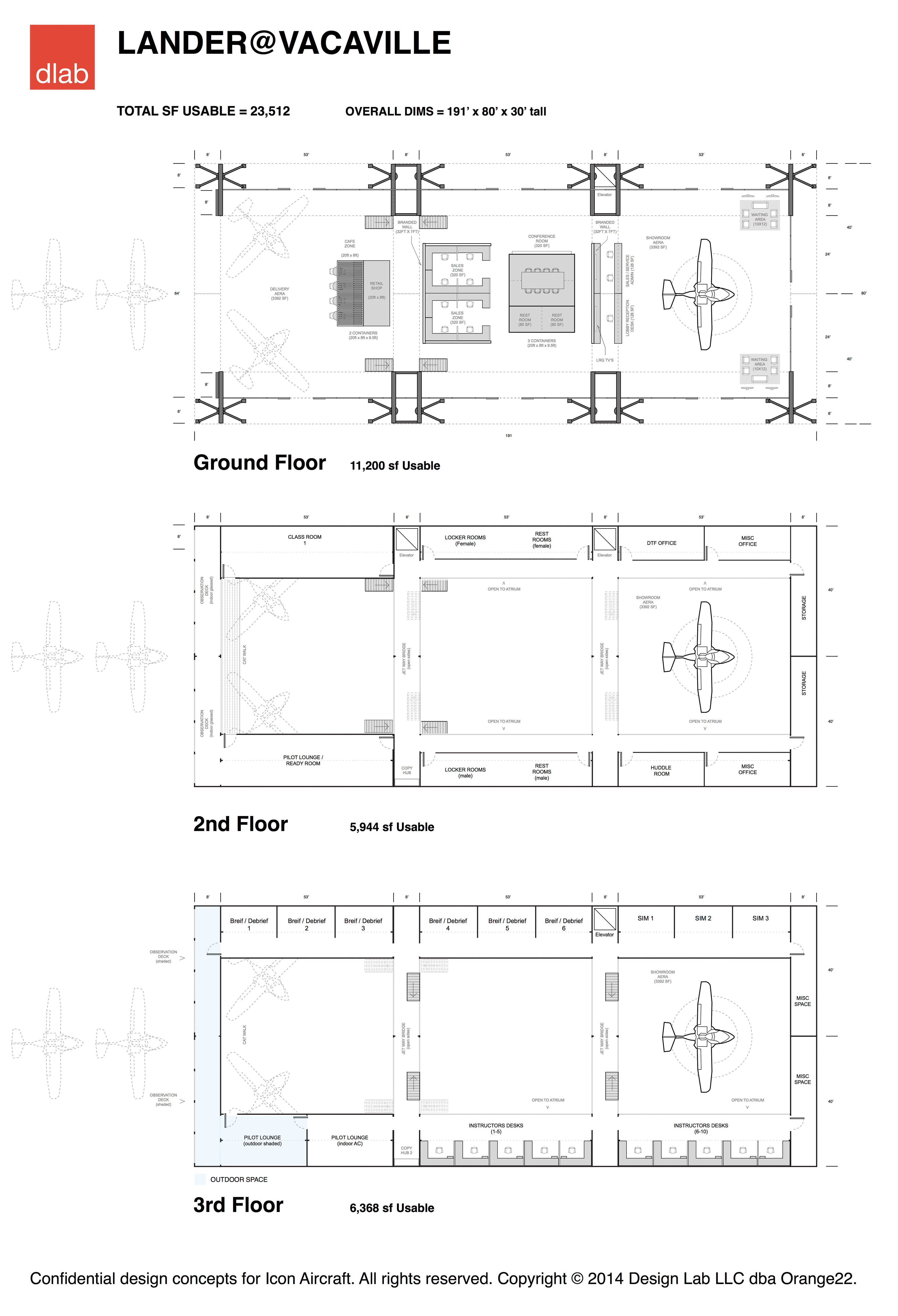
ICON AIRCRAFT Showroom & Flight Training Center
Conceptualization of worlds first all inclusive aircraft showroom and flight training facility for Icon Aircraft.
Conceptualization of worlds first all inclusive aircraft showroom and flight training facility for Icon Aircraft.